中古マンション
「利回り」は、当該不動産の1年間の予定賃料収入の不動産取得対価に対する割合であり、公租公課その他当該物件を維持するために必要な費用の控除前のものです。
また、予定賃料収入が確実に得られる事を保証するものではありません。

ぜひ一度見ていただきたい、「ユニ・アルス真田山南」です。
駅まで徒歩4分でアクセス可能な物件です。
最上階 角部屋 北・南向き 採光・通風良好♪
リフォーム済み!設備仕様充実!
浴室乾燥機付きの物件であれば、雨の日で濡れた上着や傘もすぐに乾燥できます。
大阪市天王寺区で交通の利便性の高い暮らしをするなら、大阪環状線鶴橋駅周辺が便利です。こだわりやご要望などございましたら、お気軽にお問い合わせくださ

※地図上の物件位置は近隣に物件が所在することを表すものであり、実際の物件所在地とは異なる場合がございます。
0120-21-2010
営業時間:9:30~19:00 / 定休日:毎週水曜日+第1・3火曜日
| 所在地 | 大阪府大阪市天王寺区味原町 10-20 | ||
|---|---|---|---|
| 交通 |
地下鉄千日前線 「鶴橋」駅
徒歩3分 大阪環状線 「鶴橋」駅 徒歩4分 近鉄難波・奈良線 「大阪上本町」駅 徒歩11分 |
||
| 価格 | 3,990万円 | 管理費 | 13,200円 |
| 修繕積立金 | 21,885円 | 修繕積立基金 | |
| 所在階/階数 | 8階 / 8階建 | 築年月(築年数) | 1998年 2月(築28年) |
| 専有面積 | 57.56㎡ | バルコニー面積 | 2.53㎡ |
| 建物構造 | 鉄筋コンクリート(RC) | 主要採光面 | 南 |
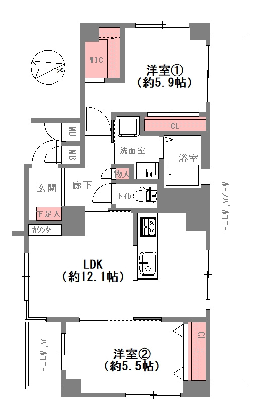
| 間取り |
2LDK
|
||
| リフォーム | 内装リフォーム:2025年10月 | ||
| 引渡し | 即時 | ||
| 管理 | 管理形態:管理会社に全部委託、 管理員の勤務形態:日勤、 管理会社:グローバルコミュニティ株式会社 | ||
| 土地権利 | 所有権 | 用途地域 | 第二種住居地域 |
| 土地の権利形態 | |||
| 駐車場 | 無 | ||
| 設備条件 | エレベーター / 陽当り良好 / リフォーム / 眺望良好 / フローリング / 2面バルコニー / 食器洗い乾燥機 / システムキッチン / 対面式キッチン / 浴室乾燥機 / ウォークインクロゼット / 収納豊富 / オートロック / TVモニタ付インターホン | ||
| その他条件 | |||
| 備考 |
大阪市天王寺区エリアでの住まいなら、住み心地も快適な「ユニ・アルス真田山南」はいかがでしょうか。 専有面積が57.56㎡ある物件でゆったりと生活したい方にいかがでしょうか。 不動産購入は人生で一度あるかないかの大きな買い物です。 ぜひ経験豊富なプロにお任せください。 メールもしくはお電話からご連絡をお待ちしております。 |
||
| 周辺の学校 | |||
| 取引態様 | 仲介 | 物件番号 | 100703006 |
| 情報公開日 | 2026年2月6日 | 次回更新予定日 | 2026年2月20日 |
| 取引条件の有効期限 | 2026年2月20日 | ||
| 取扱い会社 |
株式会社総合住宅販売 〒530-0047 大阪府大阪市北区西天満5丁目9-11総合西天満本社ビル2F 大阪府知事(8)第041697号 公益社団法人 全日本不動産協会 公益社団法人 不動産保証協会 公益社団法人近畿地区不動産公正取引協議会 関西不動産情報センター(KRIC)会員 |
||
0120-21-2010
営業時間:9:30~19:00 / 定休日:毎週水曜日+第1・3火曜日
| 所在地 | 物件の住所を表示。(詳細住所は表示していない場合もある) | ||
|---|---|---|---|
| 交通 | 物件(部屋)の沿線駅・バス停を表示。(複数駅・バス停の利用が可能な場合は最大3件まで) | ||
| 間取り/詳細 | 数字は居室数を表示。LDKはそれぞれ「リビング」「ダイニング」「キッチン」、S(納戸)とは「納戸」「サービスルーム」「マルチルーム」「フリールーム」など建築基準法第28条に適合していないため、居室と認められない納戸その他の部分を表す。 | ||
| 価格 | 販売されている住戸の価格を表示。仲介手数料は含まない。 | ||
| 管理費 | 共同住宅の設備その他共用部分の維持および管理をするために必要な費用を表示。 | ||
| 修繕積立金 | 共用部分の修繕のために積立てる金額を表示。 | ||

【外観】落ち着いた雰囲気の外観です